Share this property

Book Your Free Market Appraisal

Book Now

Castle Dene, Chester-le-Street

£2,500 pcmSOLD STCUNDER OFFERSOLD

Property Summary

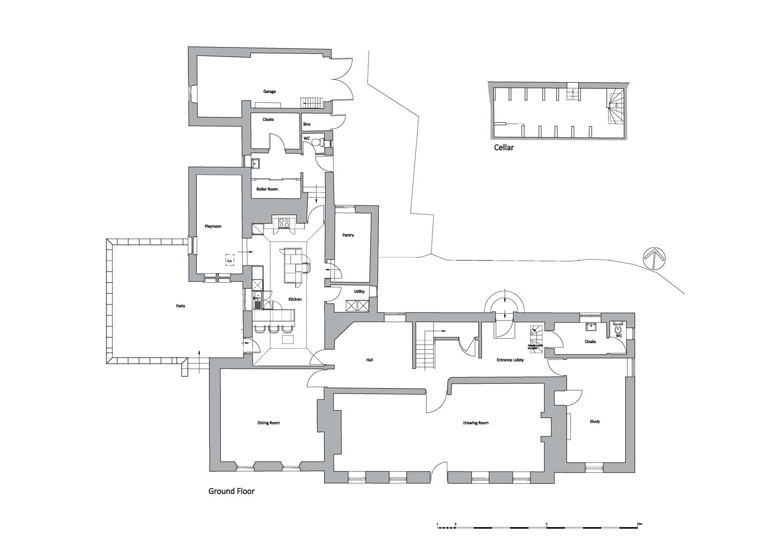
An impressive, newly renovated character property boasting five double bedrooms, two generous reception rooms, open plan kitchen/diner, playroom, study and utility rooms. Externally, there is a single garage, off street parking and an impressive south facing garden, with a further 6.5 acre paddock available by separate negotiation.

Offering in excess of 3,400 sq. ft., the internal accommodation comprises:

Entrance vestibule | Spacious entrance hallway with staircase leading up to the first floor | Large Drawing Room | Dining Room | Open plan kitchen/diner | Playroom | Pantry | Utility Rooms | 2 x Ground floor WC | 2 x Cloakrooms | Study

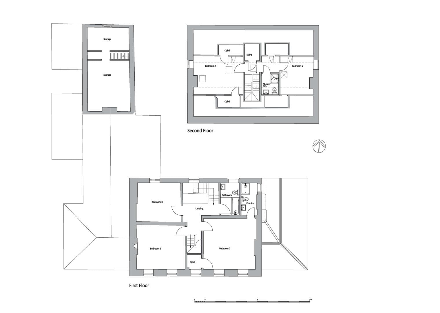
The staircase then leads up to the first floor landing and onto three double bedrooms | The master bedroom enjoys access into its own ensuite shower/WC | Bedrooms two and three are also double rooms | Family bathroom

A further staircase leads to the second-floor landing and onto two double bedrooms | Modern family shower room/WC

Offered to the market with availability from July, early viewings are strongly encouraged to secure this rare opportunity for a wonderful character property in a secluded country setting.

Property Features

  • Detached Period Property
  • Newly Refurbished
  • Unfurnished
  • 5 Spacious Bedrooms
  • 2 Large Reception Rooms
  • Three Bathrooms including an En Suite, Family Bathroom and a Separate Family Shower Room
  • 6.5 acre Paddock Available by Separate Negotiation
Download Brochure

£2,500 pcmSOLD STCUNDER OFFERSOLD

Share this property

Book Your Free Market Appraisal

Book Now

Property available via our
Richmond branch

lettings@gscgrays.co.uk
01748 829210

Arrange a viewing