Colislinn House, Hawick
Offers Over
£775,000SOLD STCUNDER OFFERSOLD
Property Summary
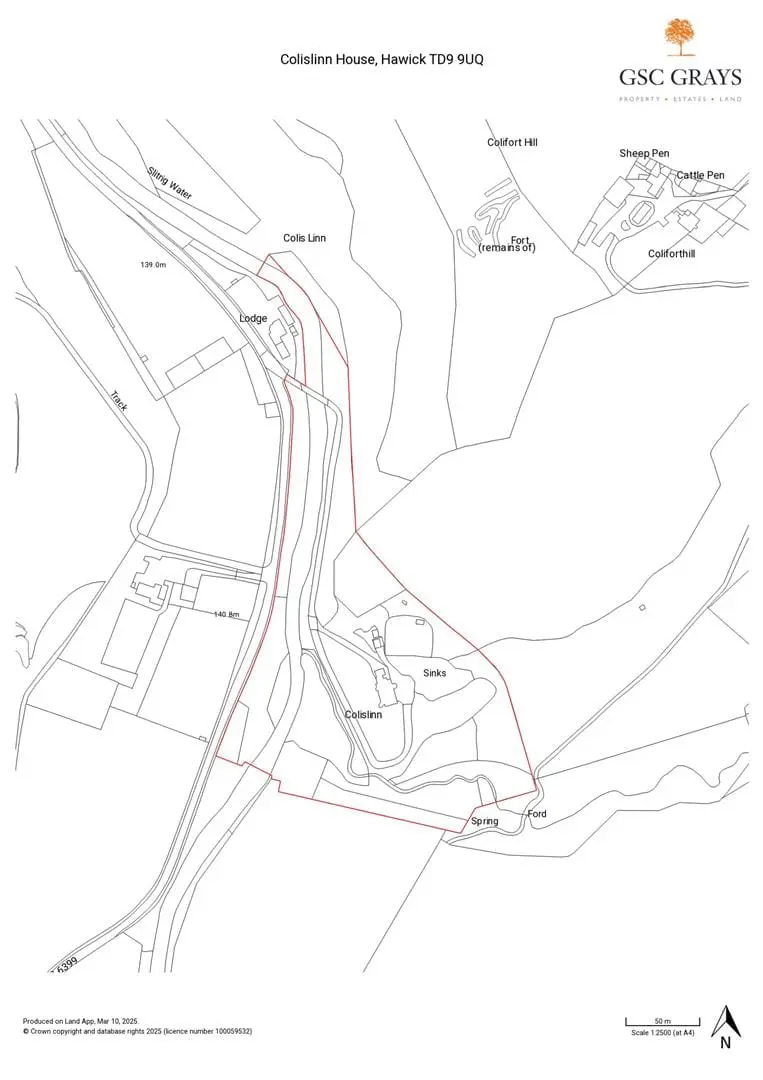
Scots Baronial family house, in a peaceful and magical woodland setting, on the banks of the Slitrig Water. Set amidst the Borders Hills, with a fabulous garden and lovely views.
Hawick 3 miles, Carlisle 44 miles, Edinburgh 58 miles (Distances approximate).
Property Features
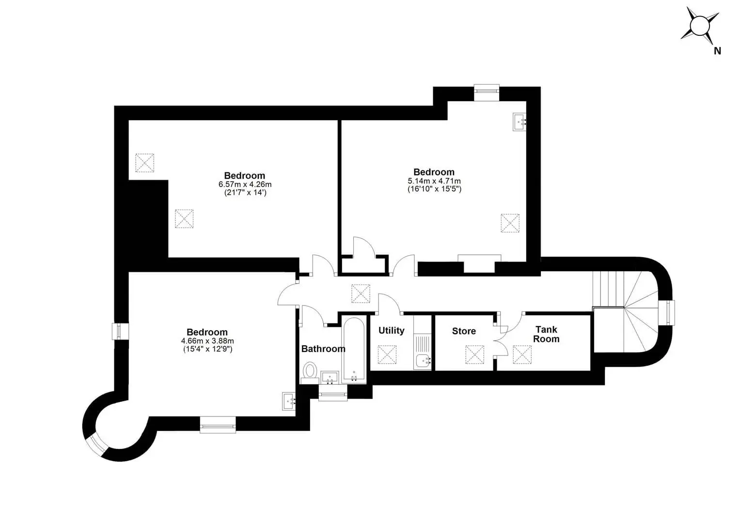
- Entrance porch, hall, 3 reception rooms, 7 bedrooms, 4 bath/shower rooms (1 ensuite), kitchen (with Aga), garden room, games room, cloakroom, utility room/laundry, upstairs WC & 2 downstairs WC’s, boo
- Approximately 5,820 sq ft.
- Old and new outbuildings with garaging, workshop and storage.
- Beautiful garden and wooded grounds and burn, with sunny terrace.
- New kitchen garden and greenhouse.
- Prepared site for solar panels.
- In all about 8.5 acres.
- For sale as a whole.
Offers Over
£775,000SOLD STCUNDER OFFERSOLD
Share this property
Book Your Free Market Appraisal
Book Now



































