Hollin Hill Farm, Rowlands Gill
Guide Price
£1,100,000SOLD STCUNDER OFFERSOLD
Property Summary
A highly desirable lifestyle & equestrian farm with a characterful farmhouse, an excellent range of traditional stone-built and modern farm buildings with productive grassland and amenity woodland.
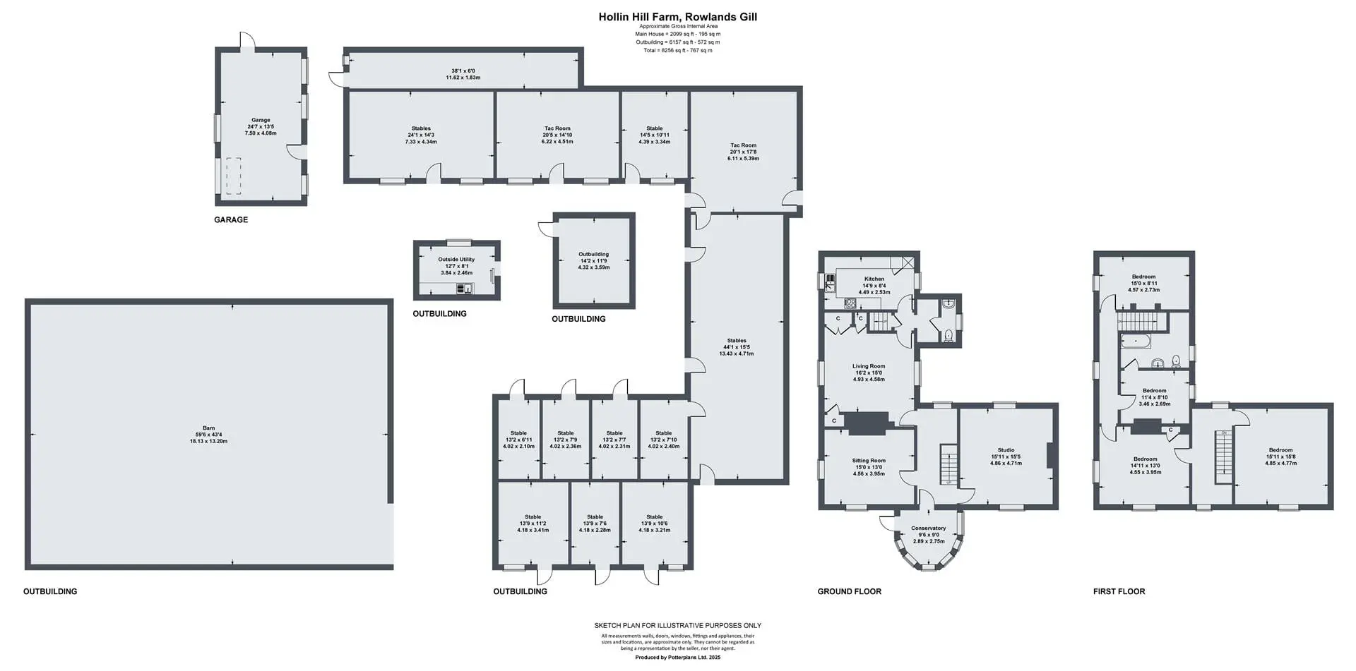
Stone built, four-bedroomed farmhouse in need of some restoration. Elevated position with superb south facing views towards Gibside and the Derwent valley.
A range of traditional stone-built farm buildings currently utilised for DIY horse livery but with scope for alternative use, subject to obtaining necessary consents. The modern buildings are limited and are used for general storage.
Combination of productive meadow land, pasture and amenity woodland.
About 46.57 acres (18.85 hectares).
For sale freehold as a whole.
Property Features
- Sought-after lifestyle and equestrian farm with far-reaching elevated views over Gibside and the Derwent valley.
- Characterful four-bedroom farmhouse
- Range of traditional and modern farm buildings with scope for alternate use (subject to consents)
- Superb equestrian faculties including 12 loose boxes, outdoor arena, feed and tack rooms.
- Productive meadow land, pasture and amenity woodland
- Easily accessible to Newcastle, Sunderland and Durham
- About 46.57 acres (18.85 hectares)
Guide Price
£1,100,000SOLD STCUNDER OFFERSOLD
Share this property
Book Your Free Market Appraisal
Book Now















