Meadow Lodge, Halliwell Farm, Heighington
Prices From
£733,100SOLD STCUNDER OFFERSOLD
Property Summary
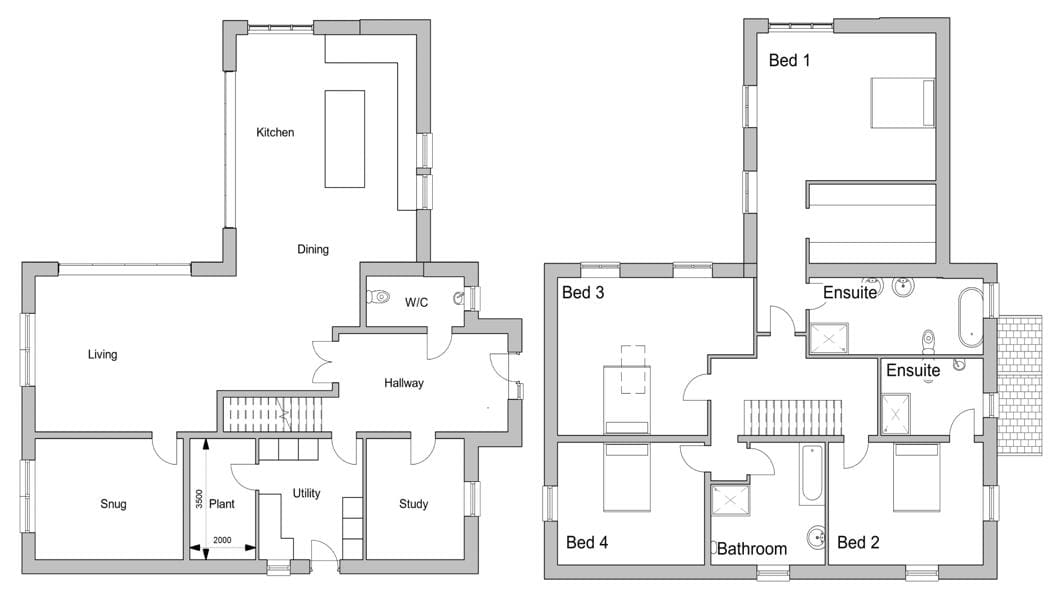
Spacious NEW HOME (size 3,176sqft 295sqm). Opportunity to customise interior to your own specifications. Set in open countryside in an exclusive development of 4 NEW private homes near to the pretty rural village of Heighington.
Welcome to Halliwell Farm, an exclusive development of 4 individually designed properties near to the village of Heighington. Meadow Lodge is a beautifully architecturally designed four bedroom detached home with an extensively large garden, a separate double garage and private driveway. This property offers a unique opportunity for the purchaser to customise the interior to their own specifications.
Watertight shell House, finished Garage and external areas from £733,100
Finished House, Garage and external areas from £949,500
(All prices dependent on specifications chosen)
Property Features
- Purchase as a watertight shell or finished property to your own specifications
- Stunning floor to ceiling windows offering uninterrupted countryside views
- Open plan kitchen diner living room leading onto west facing gardens
- Large detached double garage, multi vehicle parking and EV charging
- Less than 1 mile from historic pretty rural village with great transport links
- 5G Internet connection available
- Opportunity to purchase paddocks
Prices From
£733,100SOLD STCUNDER OFFERSOLD
Share this property
Book Your Free Market Appraisal
Book NowProperty available via our
Barnard Castle branch
agency@gscgrays.co.uk
01833 637000
Arrange a viewing





