The Parlor, Halliwell Farm, Heighington
Prices From
£675,190SOLD STCUNDER OFFERSOLD
Property Summary
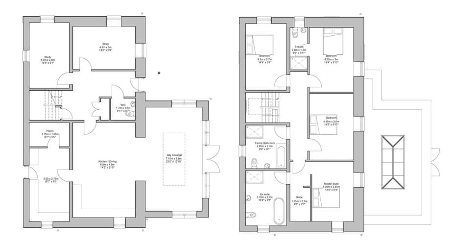
INDIVIDUALLY DESIGNED BARN CONVERSION (size 2,743sqft 255sqm) set in open countryside in an exclusive development of 4 NEW private homes near to the pretty rural village of Heighington.
Welcome to Halliwell Farm.
Watertight shell House, finished Garage and external areas from £675,190
Finished House, Garage and external areas from £825,500
(All prices dependent on specifications chosen)
Property Features
- Purchase as a watertight shell or finished property to your own specifications
- Uninterrupted views over open countryside
- Open plan kitchen diner with orangery opening out onto gardens
- Large detached double garage, multi vehicle parking and EV charging
- Less than 1 mile from historic pretty rural village with great transport links
- 5G Internet connection available
- Opportunity to purchase paddocks
Prices From
£675,190SOLD STCUNDER OFFERSOLD
Share this property
Book Your Free Market Appraisal
Book NowProperty available via our
Barnard Castle branch
agency@gscgrays.co.uk
01833 637000
Arrange a viewing






