The Hall, Halliwell Farm, Heighington
Prices From
£820,895SOLD STCUNDER OFFERSOLD
Property Summary
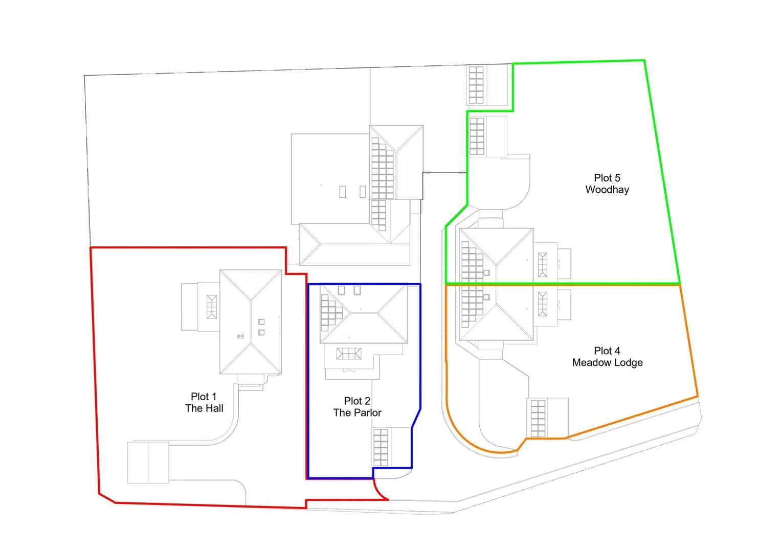
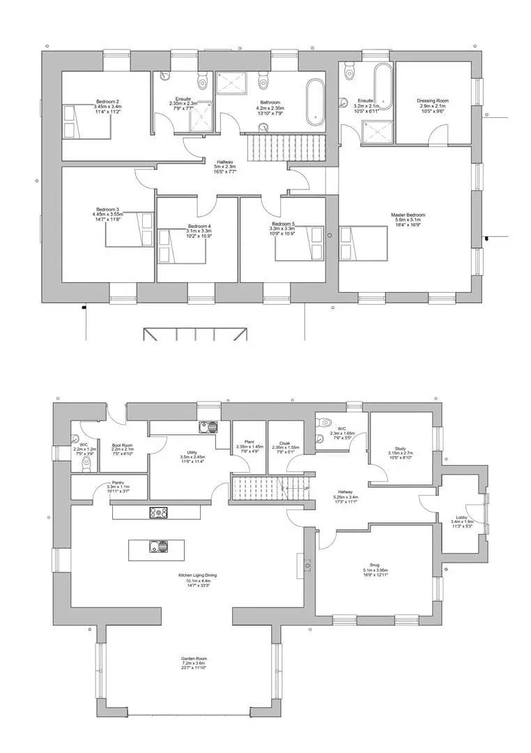
This stunning five bedroom detached home, with separate double garage and private driveway is located in a beautiful rural setting. This property offers uninterrupted south facing panoramic views over open countryside, and has a prime location on this exclusive development of five bespoke properties.
Watertight shell detached house, watertight separate double garage – offers from £820,895 (depending on specifications chosen)
Finished price £994,995 (depending on specifications chosen)
The popular village of Heighington is less than 1 mile away and can be walked to on a picturesque footpath directly from Halliwell Farm or via country lanes. The village offers a variety of amenities including a popular pre-school and primary school, two country pubs, a grocery store, hairdressers, church and village Hall. Redworth Hall Hotel and Spa is situated within 2 miles. The A67 and A1(M) are easily accessible within 4 miles. There is a good selection of senior school choices both private and state within easy reach and a selection of supermarkets at Bishop Auckland ((6 miles). Mainland train stations at Darlington (6 miles) and Durham (15 miles) and International Airports at Newcastle (35 miles) and Leeds Bradford (55 miles). (please note all distances are approximate).
Property Features
- Opportunity to purchase as watertight shell or finished property
- Internal design can be personalised on request
- Panoramic south facing views over open countryside
- Spacious detached 5 bedroom home
- Detached double garage **
- Private driveway with parking for over 6 cars
- 5G Internet connection available
- Opportunity to purchase paddocks
Prices From
£820,895SOLD STCUNDER OFFERSOLD
Share this property
Book Your Free Market Appraisal
Book NowProperty available via our
Barnard Castle branch
agency@gscgrays.co.uk
01833 637000
Arrange a viewing









